寸法はそのままで縮尺を使い、図面を倍にする方法をお伝えします
縮尺の考え方が理解できます。

目次
作業の前に知らないといけないルール
図面の寸法を変えずに図面を大きく(小さく)するには
縮尺の違うグループレイヤーにコピー貼り付けする以外方法はありません。
JWCADの絶対ルールです。
このルールを意識して、下記の説明に取り組むと理解しやすくなります。
初期設定

下記のようにレイヤーを設定します
グループレイヤー0⇒1/50 図面1
グループレイヤー1⇒1/100 図面2
グループレイヤーF⇒1/1 A4サイズ印刷枠
※図面と図面枠はあらかじめ作成したものを利用しています。


縮尺がわかりやすいように印刷枠を設定しています。
コピー先のグループレイヤー1(1/50)に設定

グループレイヤー1にしてください。
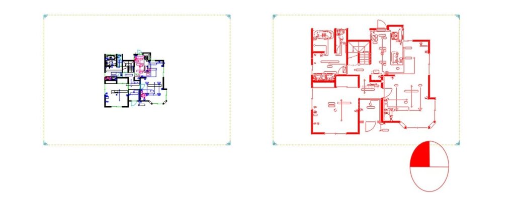
グループレイヤー0(1/100)の図面1を選択

図面1を選択
コピーして、グループレイヤー1(1/50)に貼付ける

ショートカットキー Ctrl+C


ショートカットキー Ctrl+V(グループレイヤー1)

コンプリート
グループレイヤー0(1/100)の図面をグループレイヤー1(1/50)にコピー⇒貼付けすることで、倍の図面になりました。
【重要】複写 C・移動 Mコマンドはつかわない!

コピー貼り付けコマンドを使用してください!
複写・移動コマンドは縮尺が反映されません!
※複写・移動コマンドは、異なるグループレイヤーに複写・移動ができません。
JWCAD縮尺の考え方 寸法そのままで図面を倍にする方法 まとめ
- グループレイヤーで縮尺を変える
- コピー・貼り付けコマンドを使う(複写・移動コマンドは縮尺が反映されない)
です。
参考になれば幸いです。
絶対できる、上手くなる(^^)v
それではまた!(^^)v